お気に入りに登録しました
お気に入りを解除しました

年末年始休業期間:12/27(土)~1/4(日) ※期間中のお問い合わせは、1/5(月)以降に対応させて頂きますのでご了承ください。

  • 1棟アパート
  • 築20年未満
  • 徒歩10分以内
  • 満室稼働中
  • 駅近

1棟アパート

レセンテ 1パー

★総武中央線「幕張」駅徒歩9分 ★大和ハウス施工
住所: 千葉県千葉市 花見川区武石町2丁目
価格12,800万円
利回り3.56%
  • 1棟アパート
  • 築20年未満
  • 徒歩10分以内
  • 満室稼働中
  • 駅近

1棟アパート

レセンテ 1パー

★総武中央線「幕張」駅徒歩9分 ★大和ハウス施工
住所: 千葉県千葉市 花見川区武石町2丁目
価格12,800万円
利回り3.56%

電話で問い合わせる
0120-955-783

物件情報

  • 物件名
    レセンテ 1パー
  • 所在地
    千葉県千葉市 花見川区武石町2丁目 千葉県の投資用不動産を探す
  • 交通
    総武中央線 幕張駅 徒歩9分
  • 価格
    12,800万円
  • 利回り
    3.56%
  • 想定年間収入
    456万円
  • 土地面積
    370㎡(111.93坪)
  • 建物面積
    261.46㎡(79.09坪)
  • 築年月
    平成18年12月
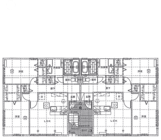
  • 各住戸の専有面積
  • 構造
    軽量鉄骨 2階建
  • 総戸数
    4戸
  • 住戸数
    4戸
  • 間取り
    2LDK+WIC×4戸
  • 土地権利
    所有権
  • 地目
    宅地
  • 用途地域
    第一種住居地域
  • 建ぺい率/容積率
    60 % / 200 %
  • 接道
    南東側 18m 公道
    北西側 6m 公道
  • 駐車場
    有  6台
  • 現況
    賃貸中
  • 引渡時期
    相談
  • 取引態様
    仲介
  • 管理番号
    30222
  • 更新日
    2025年11月10日
  • 次回更新予定日
    2026年02月08日
  • 備考

無料会員登録をすると
不動産投資に関する
限定情報や特典がもらえる!

  1. 特典

    弊社のみご紹介可能な限定公開物件の閲覧が可能に!

  2. 特典

    スピードが命の不動産情報をメールやLINEで先行配信

  3. 特典

    不動産投資お役立ち情報ダウンロード特典が貰える!