お気に入りに登録しました
お気に入りを解除しました
  • 1棟アパート
  • 利回り5%以上
  • 築15年未満
  • 徒歩10分以内
  • 駅近
  • 新着

1棟アパート

中野区上高田3丁目一棟アパート

★西武新宿線「新井薬師前」駅徒歩8分 ★全室床暖房 ★オートロック
住所: 東京都中野区上高田3丁目
価格13,800万円
利回り5.65%
  • 1棟アパート
  • 利回り5%以上
  • 築15年未満
  • 徒歩10分以内
  • 駅近
  • 新着

1棟アパート

中野区上高田3丁目一棟アパート

★西武新宿線「新井薬師前」駅徒歩8分 ★全室床暖房 ★オートロック
住所: 東京都中野区上高田3丁目
価格13,800万円
利回り5.65%

電話で問い合わせる
0120-955-783

物件情報

  • 物件名
    中野区上高田3丁目一棟アパート
  • 所在地
    東京都中野区上高田3丁目 東京都の投資用不動産を探す
  • 交通
    西武新宿線 新井薬師前駅 徒歩8分
    大江戸線 東中野駅 徒歩13分
    東西線 落合駅 徒歩14分
  • 価格
    13,800万円
  • 利回り
    5.65%
  • 想定年間収入
    780万円
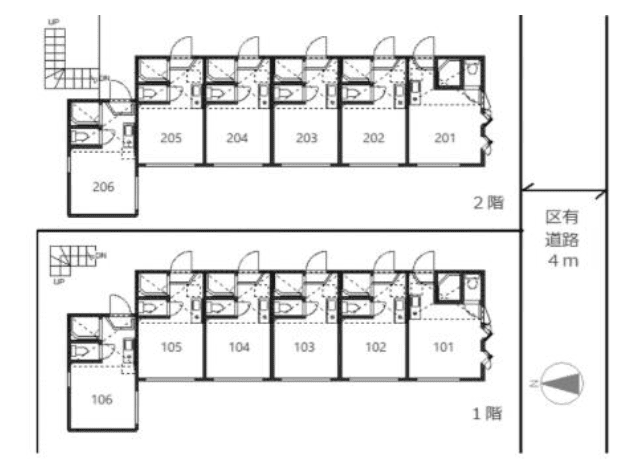
  • 土地面積
    122.99㎡(37.2坪)
  • 建物面積
    141.43㎡(42.78坪)
  • 築年月
    平成26年7月
  • 各住戸の専有面積
  • 構造
    木造 2階建
  • 総戸数
    12戸
  • 住戸数
    12戸
  • 間取り
    1R+ロフト×12戸
  • 土地権利
    所有権
  • 地目
    宅地
  • 用途地域
    第一種中高層住居専用地域
  • 建ぺい率/容積率
    60 % / 200 %
  • 接道
    南側 4m 公道
  • 駐車場
  • 現況
    賃貸中
  • 引渡時期
    相談
  • 取引態様
    仲介
  • 管理番号
    30967
  • 更新日
    2026年01月26日
  • 次回更新予定日
    2026年04月26日
  • 備考

無料会員登録をすると
不動産投資に関する
限定情報や特典がもらえる!

  1. 特典

    弊社のみご紹介可能な限定公開物件の閲覧が可能に!

  2. 特典

    スピードが命の不動産情報をメールやLINEで先行配信

  3. 特典

    不動産投資お役立ち情報ダウンロード特典が貰える!