お気に入りに登録しました
お気に入りを解除しました
  • 1棟マンション
  • 築5年未満
  • 徒歩15分以内
  • 満室稼働中
  • 築浅
  • 新着

1棟マンション

新宿区高田馬場4丁目一棟マンション

★3駅4路線利用可 ★RC造5階建 ★2022年9月築
住所: 東京都新宿区高田馬場4丁目
価格99,800万円
利回り2.9%
  • 1棟マンション
  • 築5年未満
  • 徒歩15分以内
  • 満室稼働中
  • 築浅
  • 新着

1棟マンション

新宿区高田馬場4丁目一棟マンション

★3駅4路線利用可 ★RC造5階建 ★2022年9月築
住所: 東京都新宿区高田馬場4丁目
価格99,800万円
利回り2.9%

電話で問い合わせる
0120-955-783

物件情報

  • 物件名
    新宿区高田馬場4丁目一棟マンション
  • 所在地
    東京都新宿区高田馬場4丁目 東京都の投資用不動産を探す
  • 交通
    山手線 高田馬場駅 徒歩11分
    総武中央線 大久保駅 徒歩13分
    大江戸線 東中野駅 徒歩15分
  • 価格
    99,800万円
  • 利回り
    2.9%
  • 想定年間収入
    2,892万円
  • 土地面積
    206.6㎡(62.5坪)
  • 建物面積
    588.87㎡(178.13坪)
  • 築年月
    令和4年9月
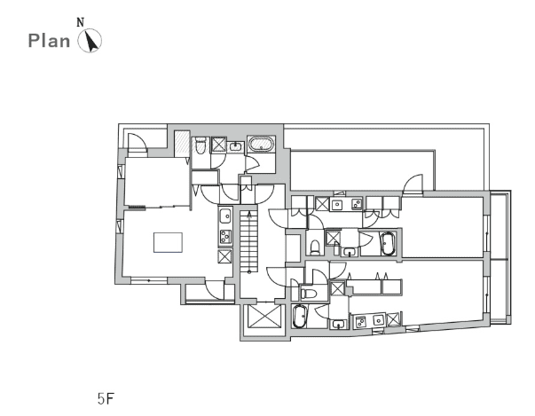
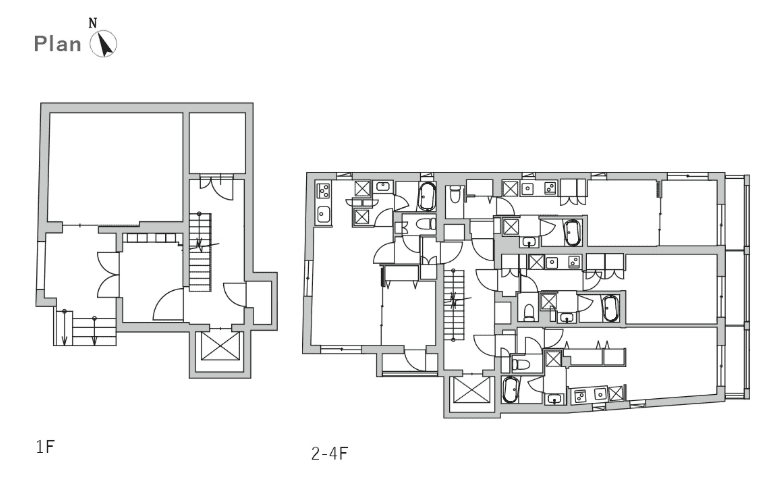
  • 各住戸の専有面積
    26.14〜41.03㎡
  • 構造
    RC造 5階建
  • 総戸数
    15戸
  • 住戸数
    15戸
  • 間取り
    1K×8戸
    1LDK×7戸
  • 土地権利
    所有権
  • 地目
    宅地
  • 用途地域
    第二種中高層住居専用地域
  • 建ぺい率/容積率
    60 % / 400 %
  • 接道
    南西側 4m 公道
    東側 6m 公道
  • 駐車場
  • 現況
    賃貸中
  • 引渡時期
    相談
  • 取引態様
    仲介
  • 管理番号
    32557
  • 更新日
    2026年04月01日
  • 次回更新予定日
    2026年06月30日
  • 備考

無料会員登録をすると
不動産投資に関する
限定情報や特典がもらえる!

  1. 特典

    弊社のみご紹介可能な限定公開物件の閲覧が可能に!

  2. 特典

    スピードが命の不動産情報をメールやLINEで先行配信

  3. 特典

    不動産投資お役立ち情報ダウンロード特典が貰える!