お気に入りに登録しました
お気に入りを解除しました
  • 1棟マンション
  • 利回り5%以上
  • 築1年未満
  • 徒歩20分以内
  • 築浅
  • 新着

1棟マンション

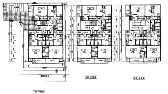
アルバス上野東

★2025年5月築 ★1DK×9戸
住所: 大阪府豊中市上野東1丁目
価格14,500万円
利回り5.59%
  • 1棟マンション
  • 利回り5%以上
  • 築1年未満
  • 徒歩20分以内
  • 築浅
  • 新着

1棟マンション

アルバス上野東

★2025年5月築 ★1DK×9戸
住所: 大阪府豊中市上野東1丁目
価格14,500万円
利回り5.59%

電話で問い合わせる
0120-955-783

物件情報

  • 物件名
    アルバス上野東
  • 所在地
    大阪府豊中市上野東1丁目 大阪府の投資用不動産を探す
  • 交通
    阪急宝塚線 豊中駅 徒歩19分
  • 価格
    14,500万円
  • 利回り
    5.59%
  • 想定年間収入
    810万円
  • 土地面積
    172.47㎡(52.17坪)
  • 建物面積
    267.84㎡(81.02坪)
  • 築年月
    令和7年5月
  • 各住戸の専有面積
    27.40〜30.10㎡
  • 構造
    木造 3階建
  • 総戸数
    9戸
  • 住戸数
    9戸
  • 間取り
    1DK×9戸
  • 土地権利
    所有権
  • 地目
    宅地
  • 用途地域
    第二種中高層住居専用地域
  • 建ぺい率/容積率
    60 % / 200 %
  • 接道
    西側 12.0m 公道
    南側 3.3m 公道
  • 駐車場
  • 現況
    賃貸中
  • 引渡時期
    相談
  • 取引態様
    仲介
  • 管理番号
    32575
  • 更新日
    2026年03月09日
  • 次回更新予定日
    2026年06月07日
  • 備考

無料会員登録をすると
不動産投資に関する
限定情報や特典がもらえる!

  1. 特典

    弊社のみご紹介可能な限定公開物件の閲覧が可能に!

  2. 特典

    スピードが命の不動産情報をメールやLINEで先行配信

  3. 特典

    不動産投資お役立ち情報ダウンロード特典が貰える!