お気に入りに登録しました
お気に入りを解除しました
  • 1棟マンション
  • 築15年未満
  • 徒歩7分以内
  • 駅近

1棟マンション

江東区白河4丁目一棟マンション

★半蔵門線「清澄白河」駅徒歩7分 ★角地
住所: 東京都江東区白河4丁目
価格28,900万円
利回り4.8%
  • 1棟マンション
  • 築15年未満
  • 徒歩7分以内
  • 駅近

1棟マンション

江東区白河4丁目一棟マンション

★半蔵門線「清澄白河」駅徒歩7分 ★角地
住所: 東京都江東区白河4丁目
価格28,900万円
利回り4.8%

電話で問い合わせる
0120-955-783

物件情報

  • 物件名
    江東区白河4丁目一棟マンション
  • 所在地
    東京都江東区白河4丁目 東京都の投資用不動産を探す
  • 交通
    半蔵門線 清澄白河駅 徒歩7分
    都営新宿線 菊川駅 徒歩10分
  • 価格
    28,900万円
  • 利回り
    4.8%
  • 想定年間収入
    1,388万円
  • 土地面積
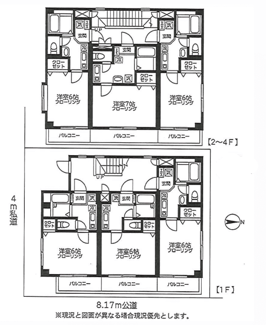
    109.12㎡(33.01坪)
  • 建物面積
    286.69㎡(86.72坪)
  • 築年月
    平成28年1月
  • 各住戸の専有面積
  • 構造
    鉄骨造 4階建
  • 総戸数
    12戸
  • 住戸数
    12戸
  • 間取り
    1K×12戸
  • 土地権利
    所有権
  • 地目
    宅地
  • 用途地域
  • 建ぺい率/容積率
    60 % / 300 %
  • 接道
    南側 4m 私道
    東側 8.1m 公道
  • 駐車場
  • 現況
    賃貸中
  • 引渡時期
    相談
  • 取引態様
    仲介
  • 管理番号
    31661
  • 更新日
    2026年02月25日
  • 次回更新予定日
    2026年05月26日
  • 備考

無料会員登録をすると
不動産投資に関する
限定情報や特典がもらえる!

  1. 特典

    弊社のみご紹介可能な限定公開物件の閲覧が可能に!

  2. 特典

    スピードが命の不動産情報をメールやLINEで先行配信

  3. 特典

    不動産投資お役立ち情報ダウンロード特典が貰える!